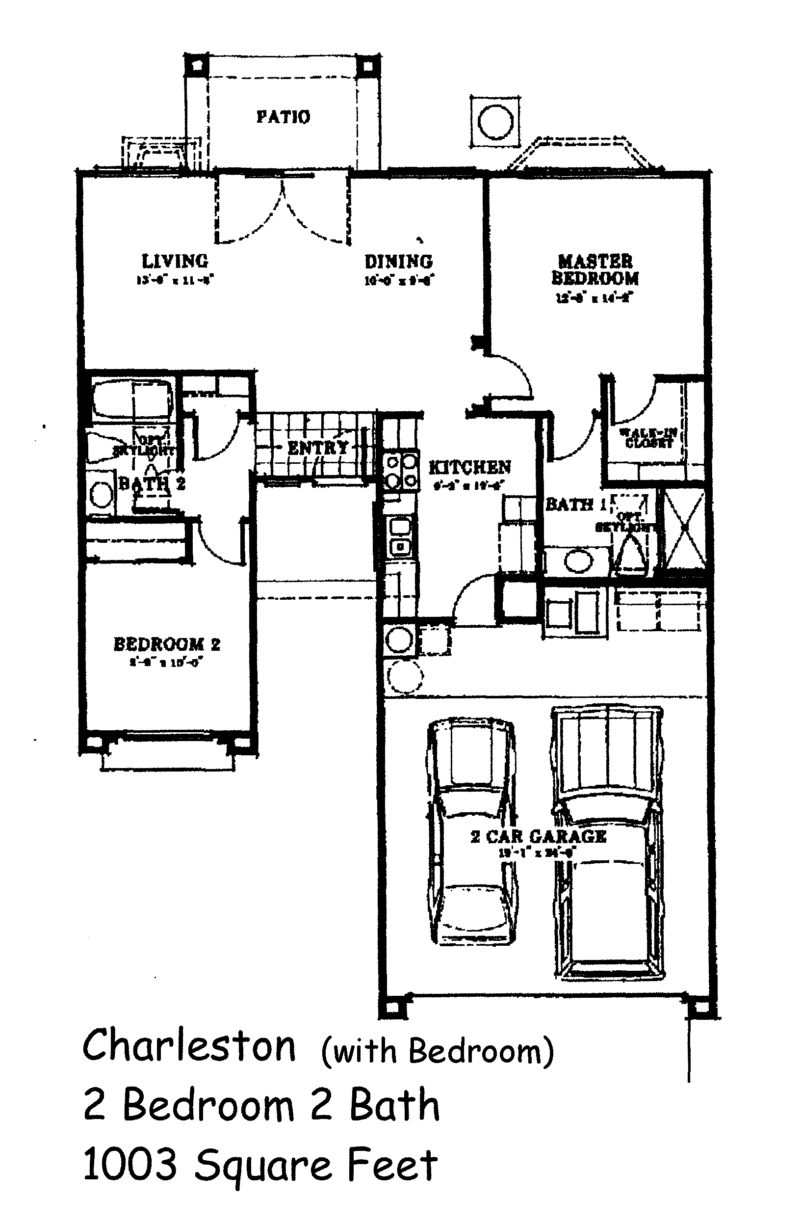
Charleston image

Charleston

1007 SF

Smallest Town House

.

 

2 Bedroom, 2  Bath

With 2 car garage.

2
Image of Kitchen

Kitchen

Enlarge

Thumbnail Image 1

Living Room

Enlarge

Image of Nevada Room

Dining Room

Enlarge

Thumbnail Image 1

Master Bedroom

Enlarge

Floor Plans

Current Cost Chart

Click to enlarge

Historical Cost Chart

Click to enlarge
Placeholder image
Placeholder image

Charlestons Sold

Click to enlarge

Charlestons for Sale

Click to enlarge

Donohue Team 702 494 9105 BHHS NV www.donohueteam.com