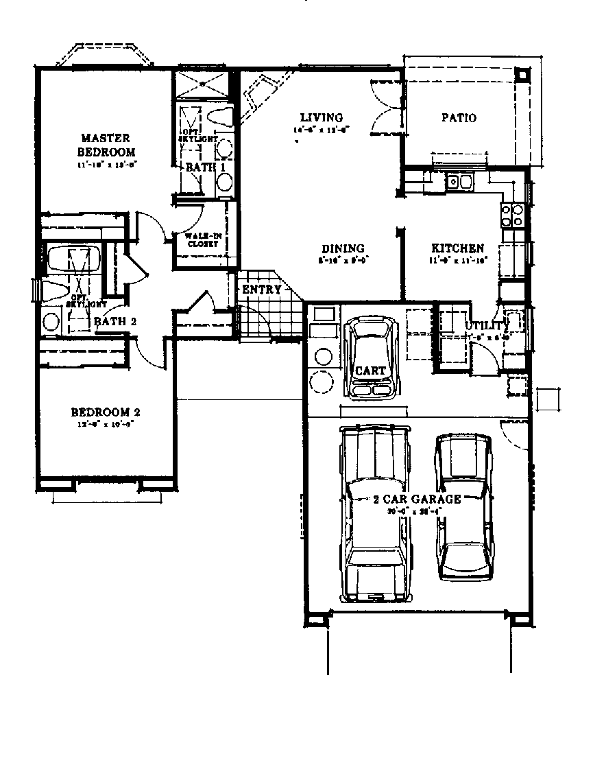
Elko Sun City Summerlin Floorplan

Elko with bedroom                                    Elko with Den option