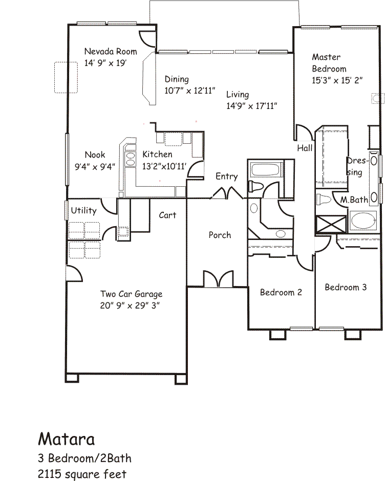
Matara